Главная — Инженерные Работы

Инженерные решения

Профессиональное 3D-моделирование

Архитектурные проекты, промышленное проектирование, дизайн мебели и техническая документация. Выполнение стеденческих работ, чертежи на заказ

Выполение заказа, по нашим чертежам

  • Основное изображение, изготовление скамейки

    Скамейка для деда мороза и ребенка для учебного заведения

    • Разработка чертежей по размерам заказчика
    • согласование чертежей с заказчиком
    • Закупка материала
    • Сварка металлокаркаса
    • Покраска металлокаркаса в 2 слоя
    • Обработка древесины
    • Покраска древесины в 2 слоя
    • Сборка и упаковка
    • Доставка на объект заказчика
    ⬇️ Развернуть ⬇️
    изготовление скамейки: этап 1 изготовление скамейки: этап 2 изготовление скамейки: этап 3 изготовление скамейки: Готовое изделие
  • Наши услуги

    • 3D-моделирование: Полные 3D-модели мебели, промышленного оборудования, детских площадок, архитектурных элементов, а также объектов жилой и инженерной инфраструктуры — квартир, коттеджей и систем трубопроводов
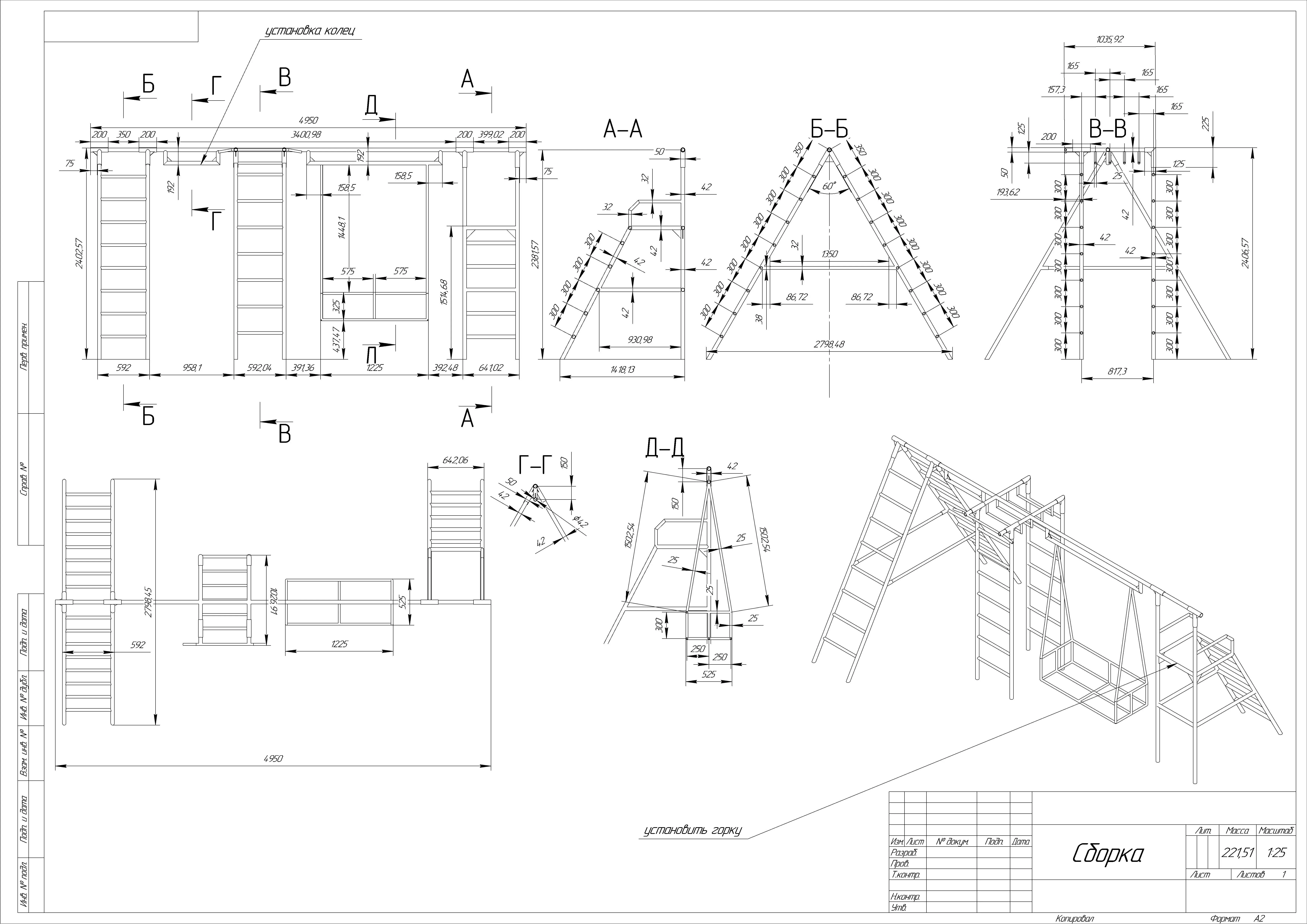
      3D-модель детского спортивного комплекса с комплектом чертежей для производства
    • Комплекты чертежей и спецификаций для производства, строительства и монтажа: От рабочих чертежей деталей и узлов до полной исполнительной документации. Мы разрабатываем проекты, готовые к передаче в цех, на стройплощадку или подрядной организации, обеспечивая точность, читаемость и удобство использования на каждом этапе реализации.
      3D-модель стула по индивидуальным требованиям заказчика
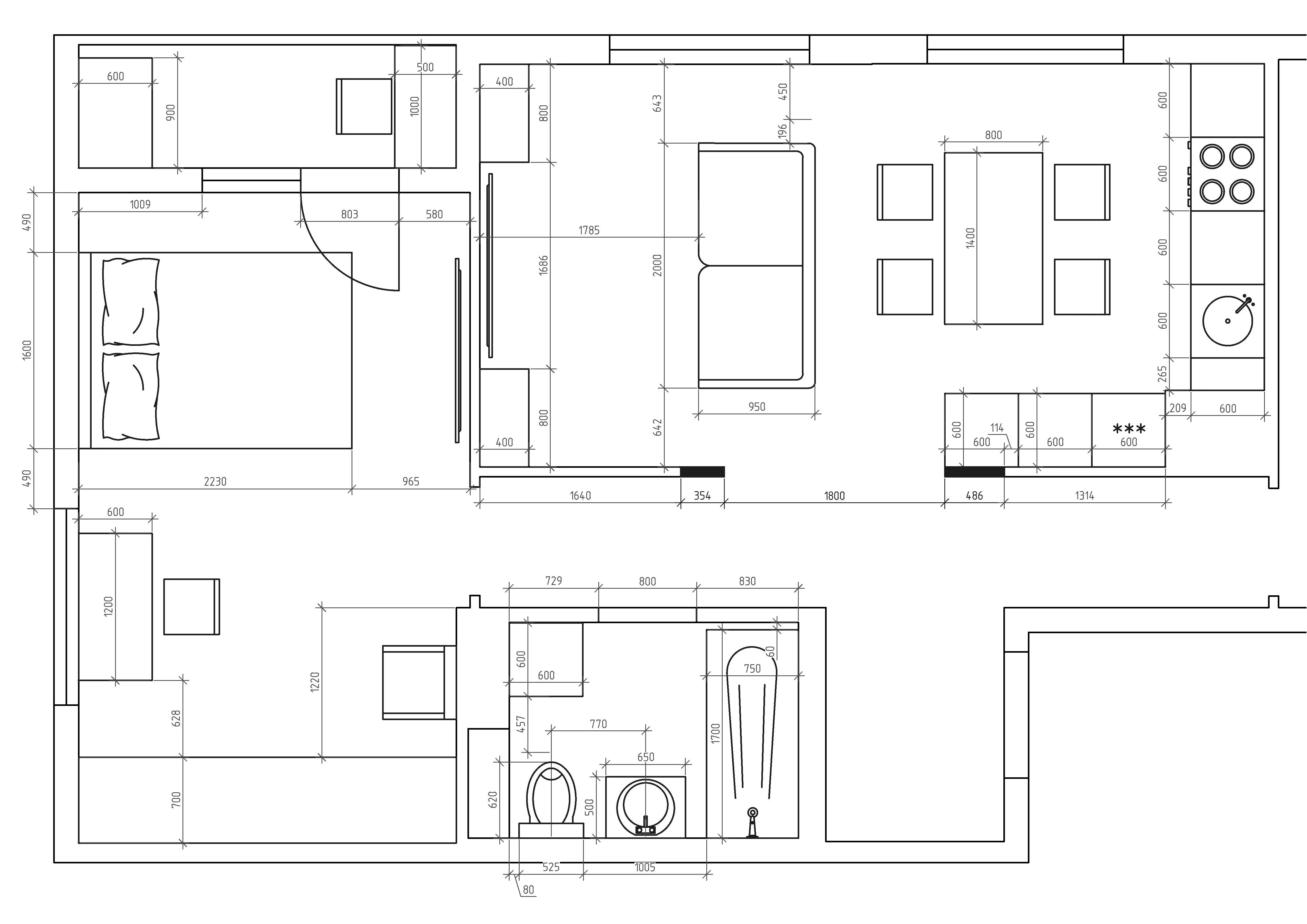
    • Архитектурное и интерьерное проектирование: Разработка поэтажных планов, планировок и зонирования помещений, создание функциональных и эстетичных интерьерных решений для жилых, коммерческих и общественных объектов. Включает подбор мебели, освещения, отделочных материалов и детальную проработку элементов интерьера с учетом пожеланий заказчика.
      3D-модель стула по индивидуальным требованиям заказчика
    • Инженерные проекты: Проектирование систем водоснабжения, канализации, вентиляции, отопления и других инженерных сетей для жилых, коммерческих и промышленных объектов. Включает разработку поэтажных планов, схем разводки трубопроводов, расположение оборудования и подготовку полного комплекта технической документации для строительства и монтажа.
      3D-модель детского спортивного комплекса с комплектом чертежей для производства
    • Дизайн мебели для производства и маркетплейсов: Разработка 3D-моделей и комплектов чертежей мебели в стиле лофт и индивидуальных изделий. Проект включает точные размеры, визуализацию, подготовку документации для производства и продажу на маркетплейсах, обеспечивая высокое качество и готовность к серийному производству.
      3D-модель и комплект чертежей стола по индивидуальным размерам

    Примеры проектов

    3D-модель детского спортивного комплекса с комплектом чертежей для производства

    Детский спортивный комплекс

    Разработан детский спортивный комплекс по индивидуальным размерам и схемам заказчика. Выполнена полная 3D-модель с комплектом чертежей для производства. Комплекс установлен на территории частного дома в Тверской области, обеспечивая безопасное и функциональное игровое пространство для детей.

    3D-модель стула по индивидуальным требованиям заказчика

    Дизайн мебели и производство

    Созданы 3D-модели и детальные чертежи мебели в стиле лофт — стульев, столов и других изделий по индивидуальным размерам заказчика. Каждый проект подготовлен для промышленного производства и полностью адаптирован для размещения и продажи на маркетплейсах.

    План эвакуации для офисного здания

    Архитектурные и жилые проекты

    Разработаны поэтажные планы, функциональное зонирование и детальные планировки квартир, коттеджей и частных домов. Проекты включают расстановку мебели, расположение светильников и розеток, что обеспечивает удобство, эргономику и продуманную организацию пространства.

    Комплект чертежей для производства мусорных тумб для магазинов и спорткомплексов

    Чертежи и схемы движения транспорта и эвакуации

    Обновленная схема движения транспорта на территории карьера Выполнена актуализация схемы движения транспортных средств на территории карьера с учетом текущей организации производства и безопасности. Схема обеспечивает оптимизацию маршрутов, снижение риска аварийных ситуаций и улучшение логистики на объекте.

    3D-модель лестницы для согласования с заказчиком

    Лестницы и перила

    Разработан полный комплект технических чертежей для изготовления лестницы в коттедже. Документация создана с учётом требований безопасности, эргономики и эстетики. Чертежи обеспечивают точное соответствие конструкции проектным параметрам и служат надёжной основой для качественного производства изделия.

    Почему выбирают нас

    • Высококачественная визуализация и 3D-моделирование для наглядного представления проекта.
    • Полный комплект технической документации для производства и строительства.
    • Индивидуальные решения для жилых, коммерческих и промышленных объектов.
    • Фокус на функциональность, безопасность и соответствие нормам.
    • Опыт в проектировании мебели, архитектурных объектов и инженерных систем.